Home
Arbeiten
Projekte
Wettbewerbe
Studien
Dienstleistungen
Werkverzeichnis (PDF)
Atelier
Bürobild
Team
Geschichte
Publikationen
Stellen
Kontakt
News
Atelier 5
Architektur und Planung AG
Sandrainstrasse 3
Postfach
CH
3001
Bern
T
+41 31 327 52 52
F
+41 31 327 52 50
atelier5@atelier5.ch
Startseite
Arbeiten
Atelier
Kontakt
News
Projekte
Wettbewerbe
Studien
Dienstleistungen
Bürobild
Team
Geschichte
Publikationen
Stellen
Bubenbergzentrum, Bern
Architekturwettbewerb mit Präqualifikation, 2017
Auslober: Schweizerische Bundesbahn
Visualisierung Bubenbergplatz
Situationsplan
Grundriss Erdgeschoss
Grundriss Untergeschoss
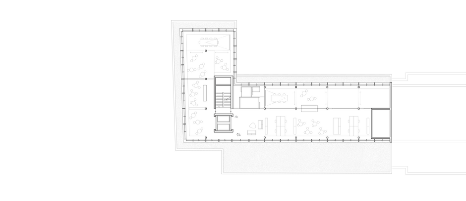
Grundriss 1. Obergeschoss
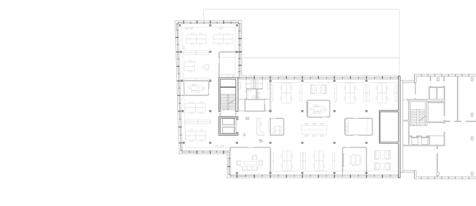
Grundriss Regelgeschoss
Grundriss Attikageschoss
Querschnitt (Blick zur Schanzenstrasse)
Querschnitt (Blick zum Bubenbergplatz)
Fassade Bubenbergplatz
Fassade Schanzenstrasse
Visualisierung Passage
Städtebauliche Einbettung
2017 Papillon Baufeld F Ried
2016 Wohnüberbauung Ittigen