Home
Arbeiten
Projekte
Wettbewerbe
Studien
Dienstleistungen
Werkverzeichnis (PDF)
Atelier
Bürobild
Team
Geschichte
Publikationen
Stellen
Kontakt
News
Atelier 5
Architektur und Planung AG
Sandrainstrasse 3
Postfach
CH
3001
Bern
T
+41 31 327 52 52
F
+41 31 327 52 50
atelier5@atelier5.ch
Startseite
Arbeiten
Atelier
Kontakt
News
Projekte
Wettbewerbe
Studien
Dienstleistungen
Bürobild
Team
Geschichte
Publikationen
Stellen
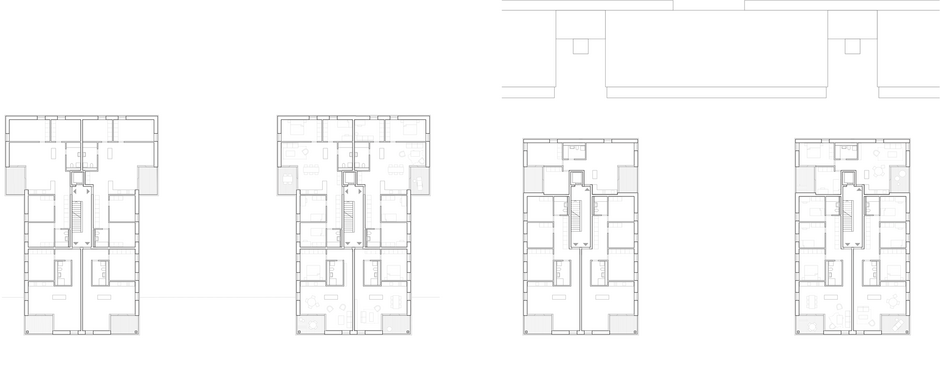
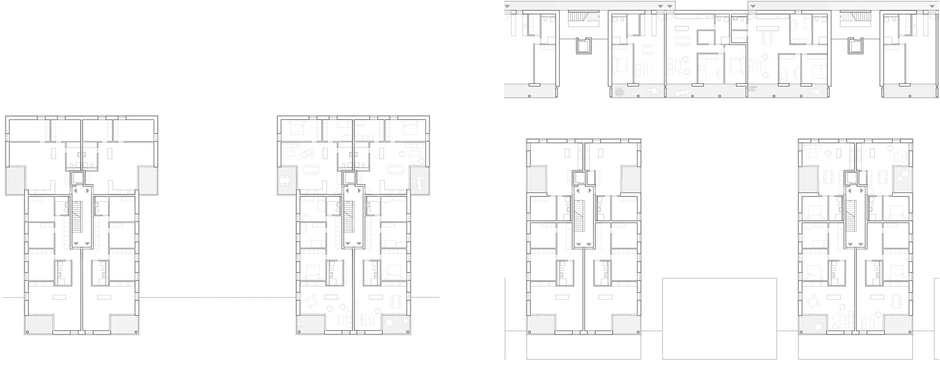
Wohnüberbauung, Ittigen
Eingeladener Studienauftrag, 2016
Auslober: CPV/CAP Pensionskasse Coop und
Losinger Marazzi AG
Visualisierung (Blick von der Aare)
Visualisierung (Hof)
Situationsplan
Situationsplan Erdgeschoss
Querschnitt Situation
Ansicht von der Aare
Städtebauliches Konzept
Grundriss Erdgeschoss
Grundriss Regelgeschosse
Grundriss 4. Obergeschoss
Querschnitt West
Querschnitt Ost
Fassaden Schnitt und Ansicht
Modellaufnahme
2017 Bubenbergzentrum, Bern
2017 Farbweg, Burgdorf