Home
Arbeiten
Projekte
Wettbewerbe
Studien
Dienstleistungen
Werkverzeichnis (PDF)
Atelier
Bürobild
Team
Geschichte
Publikationen
Stellen
Kontakt
News
Atelier 5
Architektur und Planung AG
Sandrainstrasse 3
Postfach
CH
3001
Bern
T
+41 31 327 52 52
F
+41 31 327 52 50
atelier5@atelier5.ch
Startseite
Arbeiten
Atelier
Kontakt
News
Projekte
Wettbewerbe
Studien
Dienstleistungen
Bürobild
Team
Geschichte
Publikationen
Stellen
Residenz Brigerberg
Visualisierung
Situationsplan
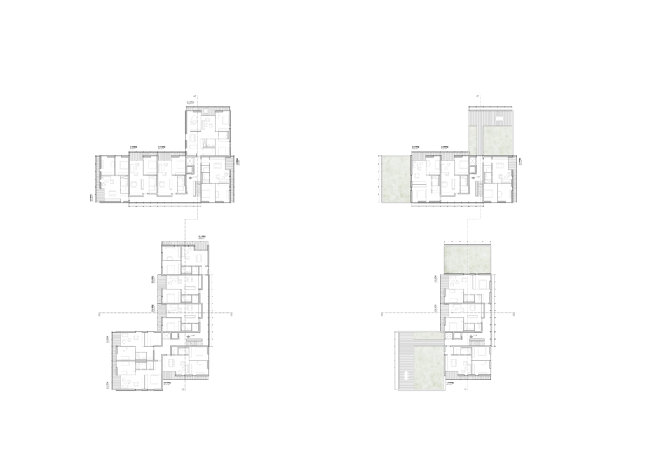
Erdgeschoss
1. Obergeschoss und Dachgeschoss
Ansichten
Querschnitt und Längsschnitt
Fassadenschnitt und Fassadenansicht
Geyisried, Biel
2019 Bieuti Ernen