Erlenmatt Ost - Baufeld A Basel
Studienauftrag, 2014, 2. Rang
Auslober: Losinger Marazzi AG, Basel
Nutzungen: Wohnen in Eigentum und Miete, Hotel, Einkaufsmall, Gewerbeflächen und Gastronomie
Das Areal „Erlenmatt“ wird nach seiner Fertigstellung für über 3'000 Menschen zu einem neuen Zuhause. Mit dem grossen zentralen Park und mehreren Stadtplätzen wird hier ein lebendiges, neues Quartier im Norden von Basel entstehen. Im Kontext des ganzen Areals setzt das schräg gegenüber dem Badischen Bahnhof gelegene Baufeld A einen weithin sichtbaren Auftakt für den neuen Stadtteil, es wird zum „Kopf“ der östlichen Baufelder. Durch sein vielfältiges Angebot an Miet- und Eigentumswohnungen, an diversen Einkaufsmöglichkeiten, mit einem Hotel, Restaurants und Cafés soll Baufeld A in Zukunft zu einem sozialen Dreh- und Angelpunkt werden.
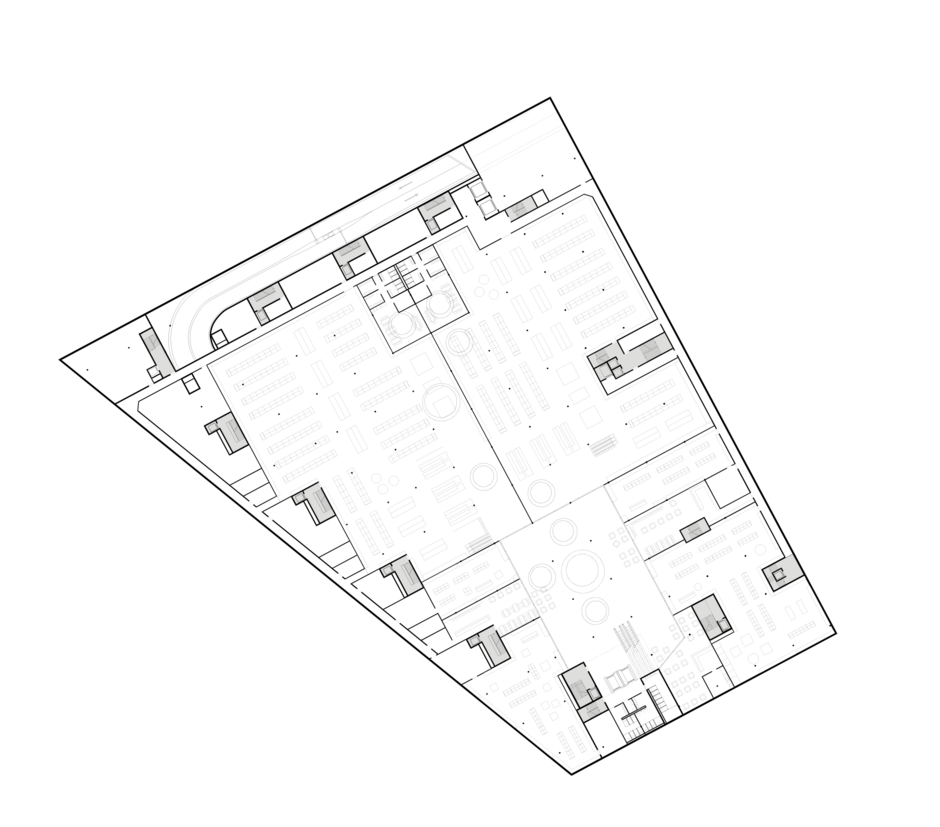
Der Fokus dieses Vorschlags wird darauf gelegt, das Konfliktpotential der räumlichen Nähe unterschiedlicher Nutzungen und der grossen Wohnungsdichte auf ein Minimum zu reduzieren. Vorgeschlagen wird ein Gebäudekomplex, der sich auf einen Blockrand um den grossen Innenhof konzentriert und auf weitere Einbauten im Hof gänzlich verzichtet.
Die Verkaufsnutzungen sind im gesamten 1. UG sowie im Erdgeschoss des zum Trigonplatz orientierten Westflügels angesiedelt. Über grosse Oberlichter wird das 1. UG mit Tageslicht versorgt. In der dunklen Jahreszeit leuchten diese Oberlichter die Bäume des Innenhofs von unten an. Eine über den ganzen Grundriss gleichbleibende, orthogonale Struktur des Erdgeschosses und der Obergeschosse vereinfacht die Ecklösungen und ermöglicht eine ideale Ausrichtung der Sichtbeziehungen in die Tiefe des Hofs. Im Nordost-Flügel bildet das Hotel einen vierstöckigen Lärmschutzriegel zur stark befahrenen Schwarzwaldallee.







