Wohnheim PTA Stiftung, La Neuveville
Direktauftrag
Auftraggeber: Stiftung/Fondation PTA-Biel
Das Wohnheim in La Neuveville bietet erwachsenen Menschen mit einer kognitiven oder mehrfachen Beeinträchtigung einen Lebensort. Grundgedanke des Wohnheims ist das offene, unterstützende und gemeinschaftliche Leben. Dieses Miteinander soll durch gemeinsame Aktivitäten und eine dörfliche Infrastruktur gefördert werden.
Das Wohnheim liegt nahe dem Bielersee. Das Gelände umfasst mehrere Parzellen, die sich nördlich und südlich, der Kantonstrasse befinden.
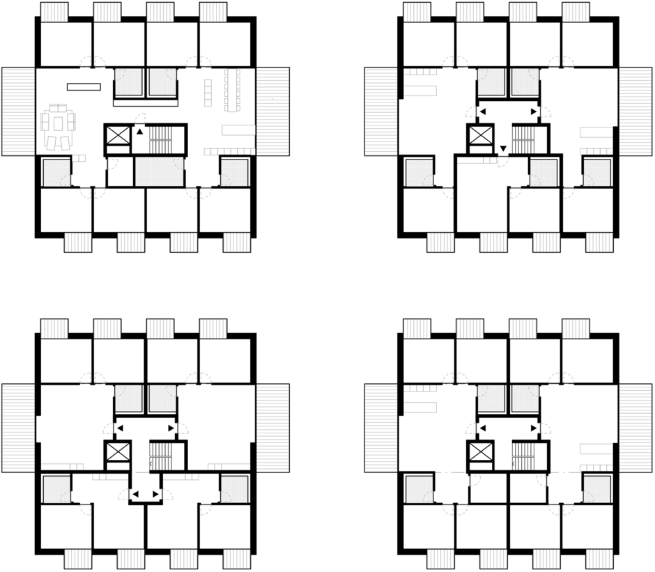
Die Bestandsbauten sind nicht mehr an die Bedürfnisse der Nutzer angepasst. Der Wohnraum und die enge Grundrissgestaltung, bietet den Bewohnern und den Pflegern zu wenig Raum für das Arbeiten in Gruppen, als auch Orte des Rückzugs. Durch diese kleinteilige Grundrissgestaltung entsteht ein sehr hoher Personalbedarf. Die beiden Bestandsbauten sind sanierungsbedürftig und bedürfen einer inneren Umstrukturierung.
Aus diesen Gründen wurde Atelier 5 mit einer Zustandsanalyse, einer Potentialstudie und einer Machbarkeitsstudie beauftragt.
Ziel der Studien war es, die Merkmale der Umgebung und individuellen Qualitäten durch eine Architektur, die an den Ort und die Nutzer angepasst ist, zu ergänzen. Durch eine flexible Grundrissgestaltung, die in jedem Haus Gemeinschaftsräume und Orte des Rückzugs miteinander verbindet, werden Orte der Begegnung geschaffen. Im Fokus der Entstehung lag dabei der Gedanke bei dem gemeinschaftlichen Leben, das durch eine gemeinsame Infrastruktur gefördert werden soll. Durch eine lockere Bebauung und Stellung der Gebäude zueinander, bettet sich das Wohngelände behutsam in das Dorfgeschehen ein.








| Siedlungen Thalmatt 1 + 2, Herrenschwanden | METAS - Institut für Metrologie, Wabern |